PROJECTS
SERVICES
CONTACT
PROJECTS
SERVICES
CONTACT
LUAR DESIGN
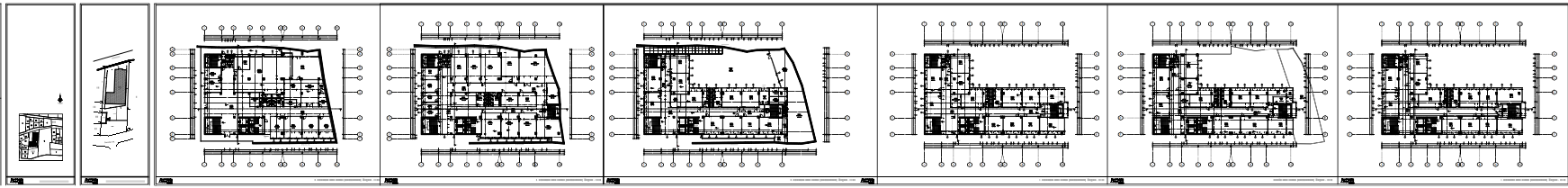
BUYUK CAMLICA KOLEJI | USKUDAR, ISTANBUL, 34692, TURKEY
2014
↑
Back to Top
Luar Design
Kabul Et
Reddet