PROJECTS
SERVICES
CONTACT
PROJECTS
SERVICES
CONTACT
LUAR DESIGN
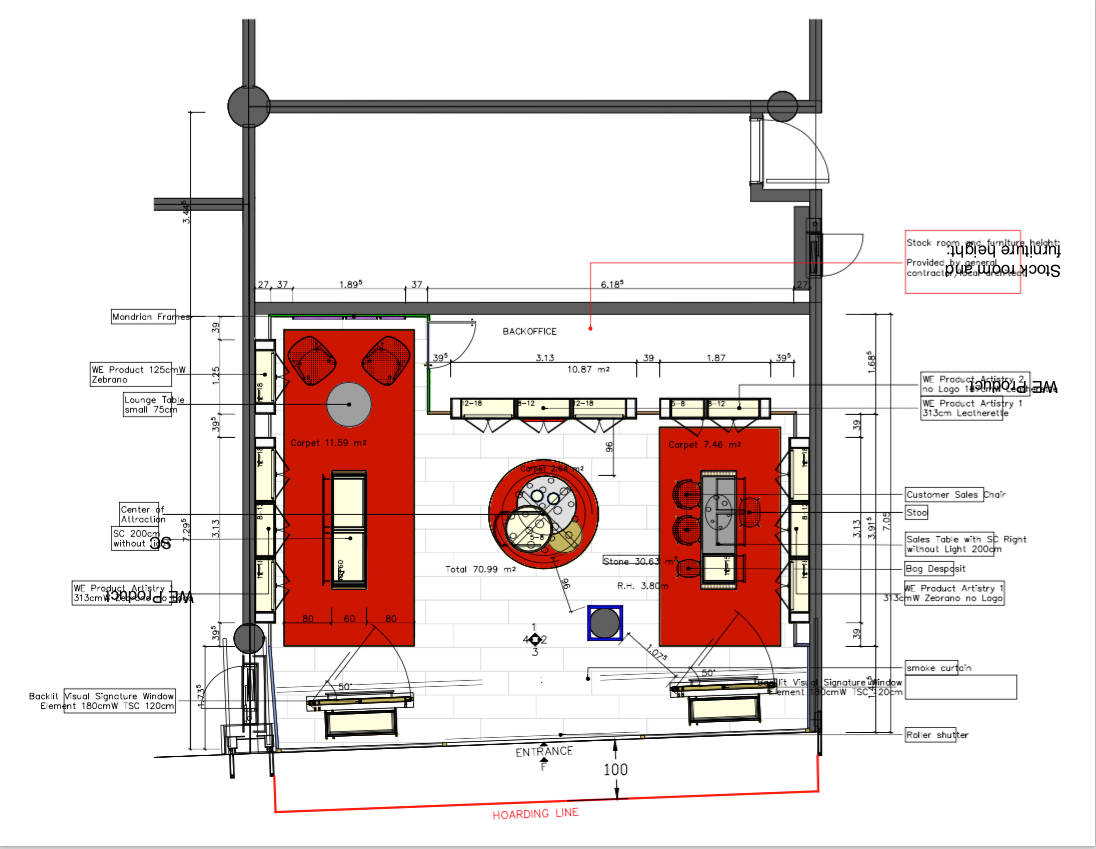
OMEGA BOUTIQUE | ISTANBUL AIRPORT | TURKEY
2019
↑
Back to Top
Luar Design
Kabul Et
Reddet